© Lucas K. Doolan
有一次,建筑师伊东丰雄到葡萄牙旅行时,在街头听到一场户外音乐会,音乐和观众巧妙交融,空气中充满音乐祭典般的欢乐氛围。
伊东丰雄在构思台中歌剧院的建筑时,融入了街头音乐会的概念,以「听的建筑」为设计原点,酝酿建筑物的轮廓,建筑外形如同四通八达的洞穴,表面的孔洞让艺术气息在建筑中流通,使艺术成为日常。
© Iwan Baan
© Iwan Baan
© Iwan Baan
© Iwan Baan
伊东丰雄心中的剧场是一座接近自然的仿生空间,体现在剧院外观则是跳脱传统建筑的方正形态,以自然中的非几何有机线条构成,希望唤回人们在几何空间中失去已久的活力与创意。
© Lucas K. Doolan
© Lucas K. Doolan
© Lucas K. Doolan
© Lucas K. Doolan
台中歌剧院以高低起伏的曲墙为主结构,构成大大小小的洞穴,让人身处其中感受自然的变化,唤醒人类的感官本能。
大片的玻璃帷幕与无明显边界线的空间让歌剧院成为一座内外融合、回归自然的开放性建筑,让阳光、空气、水与声音一起在剧院流动,与艺术一起在院内汇集、缭绕、生生不息。
© Lucas K. Doolan
© Lucas K. Doolan
© Iwan Baan
© Iwan Baan
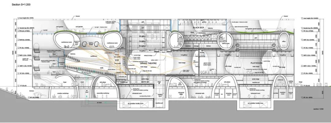
台中歌剧院是全球第一座以曲墙为结构主体支撑的建筑,整体除了边界之外,几乎没有直线,总共以58面曲墙、29个洞窟组成,空间大小不一,彼此区隔又相连,形成流动的空间,打破一边建筑界限分明的形式。
歌剧院外观的玻璃幕墙与水泥墙面都被塑造成酒瓶般的形状,伊东丰雄将其称为「壶中居」。
© Lucas K. Doolan
© Lucas K. Doolan
© Lucas K. Doolan
© Lucas K. Doolan
2005年12月,台中大都会歌剧院公布竞赛结果,伊东丰雄凭借“壶中居“的概念设计,得到六位评委的一致获得头奖。当结构工程师看到这个项目时,内心应该是抗拒的。没有柱、没有梁、整个空间没有90度的直角。有的只是蜿蜒穿行的3维曲面墙体。
2009年12月3日,日本建筑师伊东丰雄设计的台中歌剧院才攻克难关正式动工。从2005年底赢得竞标以来,这个项目历经数次重大的设计变更、五次施工发包的流标,以及无数次设计作业过程中的困难,这个伊东自称为建筑生涯重要的一个设计项目到2016年才落成。
© Lucas K. Doolan
© Lucas K. Doolan
© Lucas K. Doolan
“如果将整个世界比喻一条河流,那么一般的建筑就如同插在河流里的木椿一样,木椿的内部与河流完全不具关联性。而我想做的建筑,则是河流里的漩涡般的场所,他既拥有自己的空间,同时也完全融合在河流的流动之中。”
——伊东丰雄
© Lucas K. Doolan
© Lucas K. Doolan
© Lucas K. Doolan
© Iwan Baan
© Iwan Baan
©Toyo Ito & Associates
©Toyo Ito & Associates
©Toyo Ito & Associates
©Toyo Ito & Associates
©Toyo Ito & Associates
©Toyo Ito & Associates
©Toyo Ito & Associates
©Toyo Ito & Associates
©Toyo Ito & Associates
©Toyo Ito & Associates
©Toyo Ito & Associates
©Toyo Ito & Associates
©Toyo Ito & Associates
©Toyo Ito & Associates
©Toyo Ito & Associates
©Toyo Ito & Associates
©Toyo Ito & Associates
©Toyo Ito & Associates
©Toyo Ito & Associates
©Toyo Ito & Associates





