© Liang Xue
办公空间围绕着中央空间和多个庭院布局,其形式呼应无限符号“∞”,创造出多种共享的、具有强烈社区感的室内和室外空间,彰显了无限极“思利及人”的企业文化。
感谢 Zaha Hadid Architects对gooood的分享
无限极广场是无限极公司在中国的全球总部。除了整合致力于增强连通性、创造力和企业精神的工作环境之外,新总部还容纳了集团的草药研究设施、安全评估实验室以及用于举办会议和展览的学习中心。
项目概览©Liang Xue
无限极广场的面积为185643平方米,它定义了通往白云中心商务区的门户。商务区位于现已停用的白云机场的原址上,将广州市中心与飞翔公园以及重新开发的新社区连接起来。无限极广场毗邻广州地铁2号线飞翔公园站,横跨于地铁隧道之上,将总部分为两个在不同层级上相互连接的体量。
总部分为两个在不同层级上相互连接的体量©Liang Xue
无限极广场致力于打造更健康、更能适应新工作方式的协作办公空间,八个楼层形成一系列无限的闭环,增强了所有部门之间的互动和交流。
总平面图
办公空间围绕着中央空间和多个庭院布局,其形式呼应无限符号“∞”,创造出多种共享的、具有强烈社区感的室内和室外空间,彰显了无限极“思利及人”的企业文化。
建筑形式呼应无限符号“∞”©Liang Xue
互联的桥梁为员工提供了多样且灵活的公共空间,包括体育馆、健身房、娱乐和放松区域以及餐厅和咖啡厅等,为个人和集体的健康带来积极的影响。此外,这些桥梁也将广场的办公空间和未来的购物和餐饮区连接起来。
建筑外观©Liang Xue
互联的桥梁©Liang Xue
在广州湿润的亚热带季风气候下,无限极广场的设计和建造均以获得LEED金级认证、等同于中国绿色建筑计划的3星级认证为目标,其生命周期的碳排放量按照15.3%的隐含碳和84.7%的运营碳排放进行计算。
立面局部©Liang Xue
结构的优化工作减少了建造所需的混凝土量,同时增加了可回收部分所占据的比例。无限极广场的建造过程共计使用25088.33吨回收材料,主要包含钢、铜、玻璃、铝合金型材、石膏制品和木材。
户外空间©Liang Xue
基于对每年太阳辐射条件的分析,户外露台的宽度得以确定,以实现建筑的自遮阳。分析同时还确定了外立面穿孔铝制遮阳板的分布,以优化其对日照得热量的降低作用。以上这些措施与双层隔热低辐射玻璃共同带来高效的遮阳和隔热性能,整座建筑拥有良好的自然采光,同时又能减少建筑的日照得热量以及能源消耗。
标准幕墙日照研究
几何定位 – FS02幕墙系统
幕墙近景©Liang Xue
幕墙系统-特征板
幕墙系统
幕墙后方空隙©Liang Xue
幕墙后方空隙©Liang Xue
FS1至FS3幕墙细节构成
幕墙细部©Liang Xue
该项目还集成了一个基于建筑智能管理系统运行、由光伏系统供能的洒水器网络,可以将收集到的雨水的雾化颗粒喷射到每个中庭上方的ETFE(四氟乙烯)膜屋顶,然后通过蒸发来实现散热和降温。每个半透明的双层ETFE膜屋顶都包含一个60cm的压缩空气腔。当ETFE膜的外表面温度经过太阳辐射升至35℃时,洒水器网络将被激活,每半小时进行3-4分钟的喷洒,可将膜的表面温度降至14℃,从而使室内温度下降5℃。这也将降低屋顶太阳能热水系统对能源的需求。
洒水器网络可将收集到的雨水的雾化颗粒
喷射到每个中庭上方的ETFE膜屋顶 ©Liang Xue
天窗©Liang Xue
该项目的雨水收集、过滤和再利用系统还能够为周边景观提供微灌。3层、7层和8层的屋顶花园均种植了当地原生的药草和植物,可通过自然灌溉。这些户外公共区域与屋顶慢跑道和步道相连;屋顶绿化占据整个项目屋顶面积的49.36%。
从通高空间望向办公楼层©Liang Xue
绿树环绕©Liang Xue
建筑的智能管理系统具有监测温度、二氧化碳、PM2.5颗粒物和其他污染物的功能,与新鲜空气联动装置共同室内的空气质量,并且可以检测空间占用情况并自动进行调整,以低的能耗实现高的舒适度。与此同时,该智能系统还能通过自主学习来准确地预测各区域每天的使用趋势,从而进一步提高效率。
玻璃中庭©Liang Xue
响应广州白云中心商务区向健康产业中心发展的目标,无限极的新总部将创新性的设计和建造技术与经过考验的可持续发展战略相结合,创造出了一个使所有部门团结在一起的新工作环境,加强了整个集团内部的沟通效率。
从城市街道望向建筑©Liang Xue
项目图纸
总平面图©Zaha Hadid Architects
入口示意©Zaha Hadid Architects
行人流线©Zaha Hadid Architects
机动车流线©Zaha Hadid Architects
消防车道和消防登高面©Zaha Hadid Architects
总平面图©Zaha Hadid Architects
一层平面图©Zaha Hadid Architects
二层平面图©Zaha Hadid Architects
三层平面图©Zaha Hadid Architects
四层平面图©Zaha Hadid Architects
五层平面图©Zaha Hadid Architects
六层平面图©Zaha Hadid Architects
七层平面图©Zaha Hadid Architects
八层平面图©Zaha Hadid Architects
工作空间布局 – 协作团队©Zaha Hadid Architects
工作空间布局 – 线性排布+协作团队©Zaha Hadid Architects
工作空间布局 – 创意团队©Zaha Hadid Architects
立面图©Zaha Hadid Architects
剖面图©Zaha Hadid Architects
日照分析©Zaha Hadid Architects
综合建筑系统©Zaha Hadid Architects
几何布局 – 建筑轮廓水平定位线©Zaha Hadid Architects
几何布局 – 面板构成©Zaha Hadid Architects
FS02幕墙系统 – 连接件©Zaha Hadid Architects
FS02幕墙系统 – 构造管©Zaha Hadid Architects
FS02幕墙系统 – 面板类型©Zaha Hadid Architects
幕墙细节构成©Zaha Hadid Architects
几何定位 – 有理化©Zaha Hadid Architects
幕墙系统 – 环境条件功能©Zaha Hadid Architects
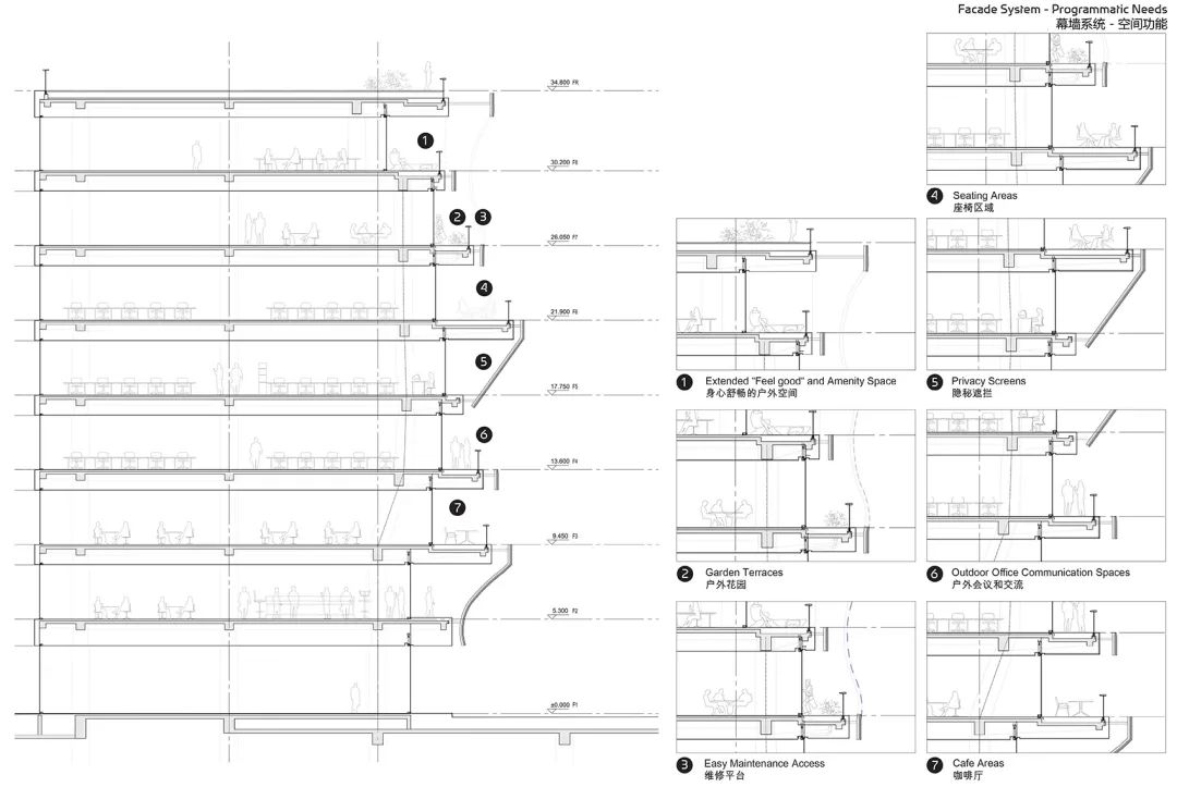
幕墙系统 – 空间功能©Zaha Hadid Architects
Site Area: 45,280m2
Gross Floor Area: 185,643m2
Above Ground: 118,200m2
Below Ground: 67,443m2
Height: 35 m
Top of occupied floor: 30.9 m, 8 floors Floors Above Ground: 8
Floors Below Ground: 2
Retail: 18,000m2
Vehicle Parking: 1026
Bicycle Parking: 800 (42,800m2) Electrical Bike Parking: 302 (2100m2) Interior Design Area: 59,368 m2
Architect: Zaha Hadid Architects (ZHA)
Design: Patrik Schumacher
ZHA Project Director: Satoshi Ohashi
ZHA Project Associates: Yang Jingwen, Juan Liu, Martin Pfleger, Dennis Brezina ZHA Project Architect: Kai-Jui Tsao
ZHA Façade Lead: Xuexin Duan, Nan Jiang
ZHA Project Team: Congyue Wang, Feifei Fan, Lida Zhang, Eugene Leung, Lily Liu, Qi Cao, Shu
Hashimoto, Xiaoyu Zhang, Ying Xia, Zhe Xing
ZHA Competition Project Directors: Satoshi Ohashi, Paulo Flores
ZHA Competition Associate: Yang Jingwen
ZHA Competition Team: Anat Stern, Chaoxiong Huang, Damiano Rizzini, Harry Spraiter, Marius Cernica, Tommaso Casucci, Xuexin Duan, Lida Zhang, Shu Hashimoto
Consultants
Local Design Institute: GDAD
Structure: RBS
Façade: BuroHappold Engineering
MEP: BIAD, GDAD
Lighting: LIGHTDESIGN, LUMIA, Holy Power
Landscape: Zaha Hadid Architects, Pubang
Interiors: Zaha Hadid Architects, GoldMantis, Sundart
Signage: Basalt
Quantity Surveyor: ARCADIS
Site Supervision: Guangzhou Pearl River Engineering Construction Supervision MEP Contractor: Shijian
General Contractor: Guangdong No.1 Construction Engineering
Façade Contractor:Jangho
Landscape Contractor: Shenzhen Landscape
Signage Contractor: ATG BEYOND
Consultants Interiors
Local Design Institute: Huateng
Project Manager: ARCADIS
Fire Safety: Huateng
MEP: BIAD
Lighting: LIGHTDESIGN – SD, LUMIA
Lighting LDI: LUMIA
Interior LDI: Huateng
Signage Design: Space Agency, Basalt
Signage LDI: Basalt
Quantity Surveyor: ARCADIS
Site Supervision: Guangzhou Pearl River Engineering Construction Supervision Interior Tower A Contractor: GoldManit
Interior Tower B Contractor: Sundart
Signage Contractor: ATG BEYOND





