line+WORK | 眺望泰山的窗口:泰山佑游客中心
2021-11-25

“泰山佑位于泰山东翼,与西翼的‘故乡的云’遥相呼应。游客中心是其中重要的空间节点,地势较低,我希望建筑能以盘旋而上的姿态来直面绵延的泰山余脉,它既是一个眺望泰山的场所,又成为与泰山互融的场景。”
——孟凡浩

泰山佑国际生态旅游度假区是继九女峰 · 故乡的云项目,line+深入泰山腹地的又一实践。游客中心位于度假区南端,与主入口相连,场地内视野开阔,山水环绕,远眺便可一览泰山雄浑壮阔的景致。于是,“与山水相连,与自然融合”的建筑场景成为设计的设想。
01 流动的形体
原始场地内东西方向有5米高差,东侧地势较高,连接景区主入口,西侧地势较低,连接景区内的主题广场。北侧拥有重要的景观面,直面园内的观景湖和远处连绵起伏的山景。

△ 区位图

△ 基地环境
建筑从地面自然生长而起,一气呵成,以盘旋上升的姿态化作远处巍峨山势的延续,以舒展的曲线造型回应群山环抱的自然环境,同时巧妙地化解场地高差,顺势连接东西两侧的公共空间。
由西侧低势地面缓缓抬升的屋面既是建筑的第三立面,也是开放的公共空间,游客可以由此拾级而上直至高点,远眺或俯瞰,收获一番别样的景观视野。

△ 生成图

场地东侧是建筑的主入口,在与入园流线相衔接的同时,通过屋面的出挑形成架空,与景区入口、湖面构成流动的视觉通廊。


架空顶面覆盖镜面波纹板,金属反射将波光粼粼的湖面、连绵的群山均吸收映射在此,山、水、建筑就此融为一体。



建筑的几何轮廓由三条基本曲线控制,两侧不同材质的应用在消减建筑体量的同时也使得形体更为舒展流畅。内圈弧线以大片玻璃面营造包容通透空间,面向山水,延展视线。外圈弧线由屋面经过扭转后过渡为穿孔铝板外表皮的立面,包裹建筑的二三层。从几何形来看,建筑的立面与屋面是由同一平面演变而来,构成高度的连贯性。

△ 平面定位线图

建筑东立面通过参数化的表皮处理,以模数化控制铝板的孔洞形态,拼接转译为雄浑泰山的巨幅画卷。隐约通透的金属立面与玻璃幕墙形成上实下虚的视觉冲突,抽象的山形图案与远处泰山山景的相互叠加、渗透,进一步丰富了园区内的视觉层次,也在更大尺度上实现视觉的流动性。

在以自然为语境中,流畅舒展的曲线语言统领着整个场地的营造,建筑整体形态一笔勾勒而成。行云流水的“运笔”凝练着眼下水光的盈动与远处群山的浑厚,直至处端头近13米悬挑的“顿笔”,意欲将建筑与山水在此交融,“回锋”的笔触在场地中余韵未消,留下湖边步道蜿蜒曲折,顺应着建筑的流动曲线向外延伸,自然地将建筑形态过渡至户外空间。

02 结构与建造
建筑的异形形体为建造提出了挑战,我们通过模块化控制结构框架、细部构件等,实施高标准建造。

△ 爆炸轴侧分析
控制建筑轮廓的三条基本曲线由数段相切的圆弧拼接而成,经过反复优化调整后,结构柱网得以均匀的分布在每段圆弧的等分点及端点上,主体结构与建筑造型的高度统一,也是实现内外空间一致的基础。曲线钢梁维持建筑异形双曲面的基本形态。在数字模型的精确指导下,超过600件几乎各不相同的钢构件得以准确加工并运送至现场安装。一系列钢桁架在经过扭转、弯曲、渐变后,精准还原了方案设计的曲线意向。

内圈玻璃幕墙以T型钢作为龙骨支撑,辅以四层中空超白玻璃。外圈双曲面建筑表皮经过优化后,分割为1040块银灰色穿孔铝板,其中大部分转化为平板,既节省加工成本,又安装的精确度。

错缝排布的穿孔板使得山水图案得以连续展现,穿孔取值10-35mm之间共10种不同尺寸,提高了阴影区域的穿孔率,使图案在近人尺度下更加细腻可读。

03 流动的空间
形式、结构、空间、三者的统一贯穿着项目。建筑连续的外部造型,对应的正是拾级而上的内部空间。中庭则在围合下应运而生。

△ 环形参观流线
室内功能围绕着中庭,随着大台阶依次展开。即使功能有所转化,空间的整体感和流动性却贯穿在游客的体验中。


开放艺术展厅和图书馆布置在为核心的台阶区域,由入口接待功能衔接;穿过沙龙及文创销售区,人们来到云端咖啡厅,远眺泰山。


柔和的连续曲线作为整体设计语言在室内空间中得到延续。石材的厚重感和稳定的肌理突显空间的沉稳,整体的素色体系则强化了空间的静谧感。

在灵动线条的组织下,内部空间层叠有致,旨在引入外部山景的同时,营造一种在山群间穿梭、对望的空间体验。

结 语
正如弗兰克·劳埃德·赖特所言:“内部空间不能独立于外部形象,内外空间是一种无间流动的关系。如果这两者是相互分离的,整体性便荡然无存。”

流动性作为重要的设计逻辑渗透入建筑形态、空间体验、结构材质。其外化的呈现是建筑的起伏形态,以顺应自然的流线处理蔓延至整片场地之中;底层、立面与屋面的转换融合,将人的活动空间分布于不同维度和高度上,形成一种流动的空间体系;内部空间完全契合于外形流线,并通过材质运用与空间组织,流动的体验感,循序渐进,与室外空间浑然一体。

当夜幕降临时,银灰色幕墙曲线随着天光产生微妙的变化,倒映在粼粼的湖水中,与连绵起伏的泰山遥相呼应,将建筑融于场地和环境之中。

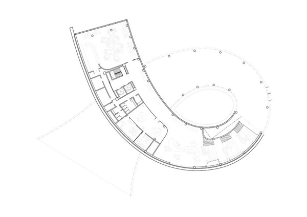
技术图纸

△ 总平面图

△ 一层平面图

△ 二层平面图

△ 三层平面图

△ 剖面图

△ 立面图
项目名称 泰山佑游客中心
项目位置 山东,泰安
建筑、室内、景观设计 line+建筑事务所、gad
主持建筑师/项目主创 孟凡浩
专业负责 李昕光(建筑)、祝骏(室内)、李上阳(景观)
设计团队 邢舒(建筑)、范笑笑、邓皓、葛震亮、杨莉、张思思、邱丽珉、陈文(室内)、金剑波、陈晓蓉(景观)
建筑面积 4402.75平方米
设计时间 2020年05月 — 2020年07月
建造时间 2020年08月 — 2021年08月
业主 泰安鲁商置业有限公司
施工图设计 山东省鲁商建筑设计有限公司
结构 钢框架结构、钢筋混凝土框架结构
材料 穿孔铝板、镜面不锈钢波纹板
摄影 金伟琦





