立面的律动 | 砖建筑
2021-12-09


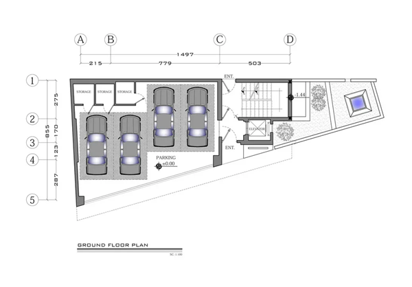
设计:A.P.Pars Architects & Associates
面积:686 m²
项目是位于住宅区的一个办公大楼。基于项目位于住宅区的外部环境,设计师既要考虑保证私密性。同时也要考虑让光线进入内部,增加内部的通透性。



为了更好的解决这些问题,设计师创新的使用参数化设计,在建筑立面使用砖结构,并使用绿松石色和蔚蓝色在砖的表面从北向南逐渐变色,让建筑立面充满韵律。








2021-12-09


设计:A.P.Pars Architects & Associates
面积:686 m²
项目是位于住宅区的一个办公大楼。基于项目位于住宅区的外部环境,设计师既要考虑保证私密性。同时也要考虑让光线进入内部,增加内部的通透性。



为了更好的解决这些问题,设计师创新的使用参数化设计,在建筑立面使用砖结构,并使用绿松石色和蔚蓝色在砖的表面从北向南逐渐变色,让建筑立面充满韵律。







