极简东方 | 唐忠汉新作
2022-01-05

求心释然,纳万千山水为一处
O heart relief, myriad landscape into one place
-
融创徐州山水云龙售楼处,由设计师唐忠汉担纲设计,砌山川为砚,挥江河为墨,设计师以经典传统的建筑语汇,融合于极简主义设计手法,造一卷山、水、石、木的写意画境,描绘一幅自然宁静的山水东方。
Melting and xuzhou yunlong sales offices, landscapes, designed by the famous designer Tang Zhonghan switches to build by laying bricks or stones mountains and rivers as the inkstone, waving the rivers as the ink, the designer to classic traditional architectural vocabulary, fusion in minimalist design gimmick, make a roll of mountain, water, stone, wood magnet of freehand brushwork in traditional Chinese painting, paint a picture of a natural and quiet landscape east..

远看山有色,近听水无声
王维 《画》
中国水墨画强调留白,写意,虚实结合,力求神、精、妙、能,达“逸品”之境,涂的是水墨黑白,内含的实则是本心与天地的联接。

01
一方文化,一方精神
山、水、石、木
平衡人文与自然
于自然与都市之间寻觅隐逸之所

"秦唐看西安,明清看北京,两汉看徐州"
徐州,上古九州之一,彭祖文化、两汉文化的源头,更是南北文化的融合之地。山水云龙坐落于此,自然而然蕴含了的东方重要的文化气息。

本案以徐州文化为起点,采用四合院“三进式”手法,空间营造专属东方的仪式感。“一进”,水光潋滟,山色空濛,回归大地自然本真。

“闲上山来看野水,忽于水底见青山。”
室外的山水与室内灯光相互映衬,交相辉映,恰如人文与自然、传统与当代的交融与渗透。

庭园与室内间的回廊,为空间增加了景深感,中国传统园林中的曲径通幽变得巍然大气。特别设计的金属网,似有若无的通透感更像是那东方的朦胧美感。

庭园与室内间的回廊,为空间增加了大尺度景深。定制设计的金属网,似有若无的通透感更像是那东方的朦胧美感。



唐忠汉在入口处采用仪式性空间,借由墙体间的座落位置,压缩形成仪式性的长廊,空间虚实,以墙体的穿插界定空间关系。
02
低奢雍雅,出尘入世
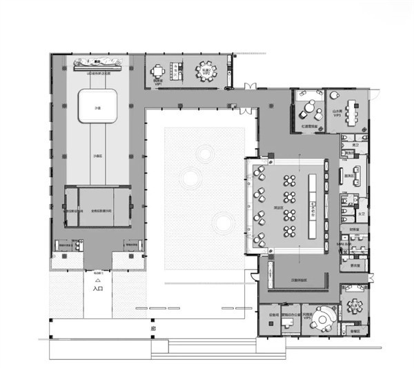
沙盘区

非壮丽无以重威
君子不壮不威
--萧何


第“三进”,为沙盘区,传承了汉代宫殿的庄严大气,唐忠汉通过空间阵列手法,营造宏大的空间气势。

“吟古诵今,对看今朝百舸争流”
依托建筑自身特点,沙盘区对称结构布局更有宫廷建筑的仪式感,空间中多以格栅或铁件为基础元素,重新架构空间的起承转合。


设计师以“汉代菱形乳丁纹柱”为设计原型,通过衍生变化,再以阙的形式表达,便有了空间中一座座大巧若拙、庄严肃穆的立柱。

落地沙盘的使用让观者得以俯瞰项目整体,更直观感受新的生活方式。空间结构线条与光源的转换,设计师运用量体及借景交融,呼应整体概念的延续。

03
模糊界限,感受虚实
洽谈区、茶室

极简东方美学为核心
探索隐奢的概念
中国不似西方面面俱到的艺术特点,相比写实,中国画更写意,讲究意境,大开大合间总结灵魂、空白的布置和物体的气质。归结到建筑上,便是模糊界限。

这是专属东方美学的浪漫,区域与区域间、室内与室外,彼此分隔却又以某种元素相连通,互相打破与再融合,虚实之间,生成的美学模式。

洽谈下沉区通过内外高差与整面落地玻璃帷幕形成虚实,模糊界限,以水面作为新的天际线,营造别致的视觉冲击。


回转之间感受不同光影变化, 书香与茶亦是文化交融与互动。仿佛穿越时空与古今中外的骚人墨客对话,又似乎听到陶潜诵读“采菊东篱下,悠然见南山”的惬意安然。

空间屋顶随自身建筑特点与走势,依汉代传统木构架屋顶--庑殿、悬山、屯顶、攒尖、歇山为设计基础,斜面、穹顶、叠顶等设计感的同时,更增添了层次感与空间节奏感。


茶室安静地包藏在洽谈区内部,静谧的空间气韵游走在其中,汉服元素呼应了项目设计主题,汉文化贯穿在每个细枝末节。

空山新雨、曲径通幽
恰如国画的虚实布置,山水云龙整体在进入深度洽谈区是一个由动入静的过程,设计师将客人从一个开放性的社交区域,走进更私密、纯粹的商谈空间。
空间的色彩基调也因此更加浓郁,相比外部的朴素与淡雅,深度洽谈区更具现代主义的审美理念,出入之间,直指人内心的安宁。
卫生间为保留光线的穿透,平面的安排将手盆区分离,透过镜面运用,镜中镜;光中光,物体的无限延伸,体验空间趣味
田舍清明日,家家出火迟
在感受现代东方建筑美学之余,设计师用现代人自然、生态、有机理念注入私宴区,养志调心,用味觉和视觉营造新的概念体验。
一层格栅引室内外互相穿透,人文与自然的微妙关系恰在平衡之间。两汉、徐州、山水东方,唐忠汉游走于多文化维度、去伪存真,自内心深处阐述纯朴的意境。



项目名称|融创·山水云龙
项目地点|江苏徐州
项目面积|1000㎡
甲方团队| 融创上海集团产品营造中心、融创苏北研发设计部
空间设计|近境制作
软装设计|TCD2 DESIGN|澍田设计
项目摄影|图派视觉





