岳蒙新作:坦然自若,艺美平衡
2022-01-21

容易被人接受的东西
往往是在熟悉和新奇之间
找到了一个微妙的平衡
——雷蒙德·洛威
我们长期以来一直以地产项目为主,首次做商业项目,难免有些紧张和惴惴。
但是所幸有二,一个是与甲方一拍即合;第二是地产设计其本质也是商业设计,和我们这次所处理的展厅其本质规律是一致的。
于是项目迅速的就完成了设计阶段。
甲方是2020年的冬天通过朋友辗转找到我的,第一次见面便感觉一见如故,我们对项目的理解和甲方一拍即合。
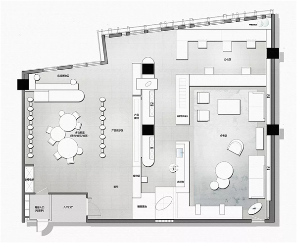
项目在一个写字楼里,自然这样的物业成本低于商场,但是问题也来了,因为在办公楼里,也不像商场中有那么多的自然流量的客户,好在甲方并不打算做撒大网的流量模式,他们还是希望能提供一个相对差异化的场所,把意向客户约到展厅来,做有针对性的服务,同时这个场所也能服务于一些独立的设计师群体,他们可以来这里喝喝茶,聊聊设计,画画图。
市场上的材料展厅很多,很酷的也很多,整体上来说就是争奇斗艳,不对,应该是“争冷斗酷”!
很多项目看着酷酷的照片,作为设计师的我,有时也不能确定这个空间到底是干什么用的?而这种只追求视觉极端化的设计逻辑,其实对展厅的目标客户来说,可读性不高,于是我们和甲方都在思考怎么才能更好的实现可读,怎么能更好的利用空间给来访客户提供多样的体验。
叔本华说人生有时会在痛苦和无聊之间摇摆,其实设计也会在“无聊”和“庸俗”之间转换和摇摆。
比如,装饰多的设计会让人感到庸俗,但是极端几何化的设计,可读性又很差,因为信息量低,乍看很酷,第二遍看就倍感枯燥无聊。
你看,过度的装饰和过度的极端几何化的设计都是某种意义上的虚张声势。那么怎么才能找到一个合适的尺度来平衡这种无聊和庸俗呢?
认知科学告诉我们:喜欢=熟悉+意外
于是,我们迅速的和甲方达成了“度”上的共识,整体上是现代的,相对熟悉的现代,但是不能过于冰冷,有欢迎和庇护的感受,同时利用材料本身的特质来制造意外。
比如,展厅顶面使用了2种材料,一个是手工的竹编,一个是金属的镜面,一个是竹编是干燥的,镜面金属是湿润的,这样就是形成了一个意外的干湿冲突,同时这2种材料也具备可读性,不会让人觉得枯燥无聊。
再比如,我们在入口的方式上也希望给出一个熟悉+意外,我不希望这个身处办公的展厅,有一个明确的入口,我希望它是神秘的,“麻瓜”们连门都找不到,只有熟悉的,拿到魔法邀请的人,才能知门明路,于是,我们借用了谍战片中的经典桥段,设置了一个大家熟悉的电话厅,一但人们进入其中,拿起电话输入密码,电话亭周遭的透明玻璃,变成不透明的,遮蔽了通往电话亭内部的视线,这时,电话亭里隐藏的暗门开启,被邀请的人们,通过暗门进入展厅,之后电话亭恢复正常,于是对于旁观者而言,电话厅里的人“意外”的凭空消失。
岳蒙
2021年12月
穿越
明暗之余,彰显界限


时间与空间的无缝连接,平面与立体的多维表达。本案独特的入口设计既提升了外立面的丰富性与设计氛围,又呼应了内里空间的惊喜与别致,使得整个设计性格在稳重之余平添了灵活与风趣。
一串数字不仅是激发观者好奇心的密码,更延伸出了空间的引流价值。在艺术展现之余亦能凸显出本案的商业价值,潮流感与趣味性为空间埋下『穿越』概念的彩蛋,静待体验者去揭晓谜团。
脱变
坦然自若,拒绝聒噪







摒弃固化的思维,在千篇一律的审美内卷之中,独道一面,另辟蹊径,面对冰冷的视觉化产品,充分挖掘空间内材料的阅读性,在整体与局部之间找到深谙其中的设计逻辑,达到令人眼前一亮的艺术平衡。




光线流动的镜面使空间在其中暗自流淌,与顶部竹编造型形成干湿而立之势,但二者互不打扰,隔空对白时书写下富含深蕴的空间文字。



暗默无语自处一室,无声无息间的自我表达,达到了熟悉与惊喜之间的微妙平衡。






磨平了视觉与感官上的强烈刺激,带有温润的空间色调仿佛在逐字逐句的默默讲述,任外界风雨莫测,我自泰然自若,在自我营造的和谐生态中缓慢生长,这是一种令人感到静稳的独特姿态,在毫不浮夸之余,却将空间语言淋漓表达。
对峙
和衷共济,深蕴阅读












空间的阅读性由不同的材质与布局所决定,逻辑上的逆势而为在过程之中穿插了不同的空间语言,将存异的材质属性安置于不同的位置,看似错位的表达实则增加了整体布局的可读性,在循规蹈矩的熟悉之中制造了意外的视觉冲突,亦是本案生命力的鲜活表达。




采取分明的材质进行空间布局,将装饰拆解还原到小单元,每一个细节都是破土而出的新鲜感,都是一句句鼓励自我展现的设计箴言。




空间的内容主题与材质交织层叠,在这里得到了浑然天成的对话,一切在优雅而内敛中润物无声,路过至此忍不住一探究竟,熟悉而惊喜,空间在此得到了自由而肆意的呼吸。


项目名称:德维艺术展厅
设计公司:上海岳蒙设计有限公司
设计负责人:岳蒙
参与设计:薛树国、徐强、何景、于颖 、刘风宁、李明、潘克浩
甲方公司名称:德维(济南)艺术装饰有限公司
完工时间:2021年10月
项目地点:山东·济南
文案编辑:清歌传媒
空间摄影:张瑞华、郑焰





