建筑设计|清迈酒店设计。By
2023-04-14
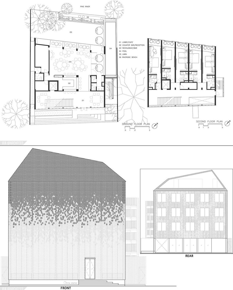
这是位于清迈的little shelter酒店,设计师用传统的木瓦装饰了倾斜的屋顶,以现代的设计手法致敬传统,建筑不对称形式与周遭的自然环境融合融。新型材料的应用也让传统文化更好的传承#设计 #建筑设计 #景观设计 #酒店 #平面设计无处不在。
来源:今日头条









2023-04-14
这是位于清迈的little shelter酒店,设计师用传统的木瓦装饰了倾斜的屋顶,以现代的设计手法致敬传统,建筑不对称形式与周遭的自然环境融合融。新型材料的应用也让传统文化更好的传承#设计 #建筑设计 #景观设计 #酒店 #平面设计无处不在。
来源:今日头条








