CURIOSITY:现代日式美学,东京Sorano酒店
2023-04-26
01日本美学的极简质感✔
Curiosity完成了位于日本东京立川市(Tachikawa)的一个酒店项目Sorano Hotel。Sorano Hotel是这座新生城市发展的主要设施之一,位于著名的国家公园附近,美丽的绿意和迷人的景色尽收眼底。以健康为理念,酒店为人们提供了一种新的度假方式——健康短途旅行和健康活动。

Sorano酒店位于东京都立川市距离新宿约30分钟的车程,毗邻著名的国营昭和纪念公园。
酒店以“health”为经营理念,提出“健康短途旅行”的新型度假方式,为客人提供了餐饮、水疗、休闲健身等一系列的服务。CURIOSITY设计团队将这一理念与其在生活方式上的创新实践相结合,旨在为客人打造一个亲近自然、体验非凡的居住环境。

CURIOSITY 是由法国设计师 Gwenael Nicolas 创立的位于东京的设计工作室,其设计领域涉及建筑、室内、产品、家具、包装、平面等 ,可以说是设计界的全能王了。

△Gwenael Nicolas
他的作品中最有代表的是 FENDI 的店铺设计。就在最近,他为东京的 Sorano 酒店进行了室内设计,这家酒店位于日本最大的国家公园之一东京昭和公园附近。
▼酒店大堂外观

从入口到大堂的这一段空间被设计为独特的“帐篷”形状,使客人在室内也能感受到自然的气息。大堂空间与户外花园相连接,将客人从城市环境引入绿意盎然的景观,带来充满惊喜的体验。环形沙发给人以舒适而友好的感觉,在花园周围迎接着客人们的到来。
▼入口空间被设计为“帐篷”的形状

Sorano Hotel
公共区域✔
Sorano Hotel这个令人难忘的空间被设计成一个帐篷形状,连接着入口和大厅,即使客人在室内也能唤起一场自然之旅。大堂直接对室外花园开放,当人们从一个城市环境进入一个郁郁葱葱的花园时,会产生一种令人惊讶的效果。圆形的沙发环绕着花园,在舒适的环境中欢迎游客的到来。



▼空间细部

到了晚上,灯光透过栅格在空间中投下丰富的光影,使大堂的氛围变得温暖而诱人。来访者可以在吧台周围的私密空间中享受轻松的时光。


▼晚上的大堂休息区


▼咖啡吧

日式美学
客房✔
酒店所有的81间客房都可以俯瞰前面郁郁葱葱的昭和基宁公园,公园拥有私人阳台和52平方米的空间。当代日本美学特征的房间,这是完整的黑色榻榻米和蒲团。透明的屏幕展示了每个房间的外部露台,而雕塑般的家具包围了迷你酒吧和其他设施。86平方米的Spa套房包括卧室和客厅,由一个巨大的滑动门分隔,带有令人印象深刻的山水屏风,让人联想到现代风格的日本Shoji。

▼标准客房平面图


▲双床客房平面图

客房整体采用自然的木质色调,床对着落地窗来布置,丰富的绿色景观都让人惬意。
▼现代日式客房


▼日式屏风

86平方米的Spa套房为客人提供优质的水疗护理服务。卧室和客厅由一道大型的滑动门隔开,门上装饰有风景图画,使人联想到现代风格的日式屏风。
▼水疗套房平面图

超大的起居室附带有厨房和餐桌,L 型的金色丝绒沙发让素雅的空间更显精致。

▼Spa套房





卫生间则以深色调为主,与外界形成鲜明的对比。

SORANO水疗区位于酒店的10层和11层,入口的接待台上方装饰着独特的水滴状灯具。
▼水疗接待区

Sorano Hotel
温泉水疗✔
Sorano Hotel拥有一个两层的水疗中心在第10层和第11层,那里的温泉设施运行在酒店自己的温泉水从该地区泵。除了对室外花园开放的20米长的温泉,游客还可以沉浸在漩涡按摩浴缸和纳米雾桑拿中。该项目具标志性的特色是一个长60米、宽4米的无限泳池,当人们从10楼爬上楼梯穿过泳池时,泳池就会显现出来。在那里,一个长长的弯曲的屋顶酒吧日夜欢迎着顾客。



▼室内水疗区

水疗中心内包含一间纳米雾桑拿房,墙壁上的灯光如同点点星光,打造出沉浸式的放松环境。

10楼包含两个 5×4m 的按摩浴缸,一边泡澡一边可欣赏到户外壮丽的景色,晴朗的日子甚至还可以眺望到富士山。 抛光的深色地面与墙面营造出幽静的氛围。

健身房休息室也延续了自然和谐的氛围。酒店具代表性的是宽4米、长60米的无边界泳池。客人可以从10层的楼梯进入泳池,感受豁然开朗的视野,在绿树、城市和富士山美景的包围下与大自然融为一体。
▼无边界泳池

无边界泳池对面是酒店的空中酒吧。细长的弧形吧台全天为客人提供服务。带有镜面的墙壁反射出朝向公园的视野,为休闲区和用餐区营造出更加开阔和迷人的氛围。
日式料理
厨师的餐桌✔
酒店的餐厅有一个面向花园开放的露台,有一个被公园绿化包围的大座位区。“厨师的餐桌”是一个隐藏的场所,专门为顾客准备独特的食物,在标志性的青铜厨房下。酒店的概念符合人们更新的生活方式本质,在这些情况下,要求更容易到达的目的地享受非凡的体验。
▼空中酒吧

▼镜面墙壁反射出朝向公园的视野

酒店餐厅同样以健康为经营理念,在日式菜品中融入了其他国家的料理文化。餐厅内还设有三个储藏室,邀请客人体验立川和周边地区的优质食材,将蔬菜和鱼类的新鲜度及品质直观地展示出来,令客人们食欲大开。此外,餐厅还包括一个隐藏的“大厨餐桌”,可用于举办特殊聚会,厨师会在标志性的青铜装置下方向客人展示厨艺。




DAICHINO RESTAURANT 位于 2 楼大厅,黑色地砖搭配浅木色餐桌无一矫饰做作,将材料原本的美感展露无遗。
▼Daichino餐厅


▼三个储藏室

▼隐藏的“大厨餐桌”


▲效果图
餐厅的露台向花园敞开,宽敞的座位使客人们得以被公园的绿意包围。从公园中亦能够直接地望见帐篷般的大厅空间。
▼餐厅露台

这个酒店设计作为 Gwenael Nicolas 而言是难得的尝试,可他更擅长的是在店铺设计领域展现的才华。
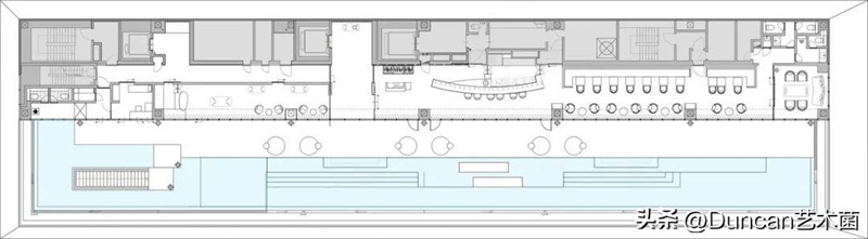
▼2层平面图

▼11层平面图

02
CURIOSITY
的其他代表项目✔
m-i-d DAIMARU SHINSAIBASHI▼

Curiosity 设计的日本大阪 m-i-d 商店以其独特的天花板脱颖而出,放射状的黄铜光束创造了一个优雅而有凝聚力的零售空间。独立的石材隔板将不同的区域隔开,复杂的石材纹理和柔和的色调契合。

HIPANDA OMOTESANDO FLAGSHIP SHOP▼

中国服装品牌 HIPANDA 在日本表参道的旗舰店也是由 CURIOSITY 设计,黑色的格栅外立面简约而又高级,营造出强烈的神秘感。

设计师用黑白撞色打造出一个充满科技感的空间,每个角落都十分独特。

PALAZZO FENDI▼

CURIOSITY 也曾多次负责 Fendi 的店铺设计,香槟色的主色调加上华丽的大理石楼梯,将品牌的精致奢华展现的淋漓尽致。



FENDI London Bond Street LADIES▼

同样是为 Fendi 设计店铺,这家店则用楼梯中央的立柱吸引了所有的目光,如同蓝色水晶般璀璨夺目。


“大家对装饰设计美学有什么问题,
或者想了解哪种设计风格的作品、
或者哪位知名设计师的作品都可以留言给我。
我看到后会陆续回复大家。”
好了我是Duncan艺术菌,
今天的分享就到这里,关注我装修不迷路。
文章来源:https://www.toutiao.com/article/7225939150636171791/





