重庆中央公园生活体验馆——山水意向,诗意重庆
2019-07-31
开敞|轻盈舒展,对话自然
Open – Light Stretch, Close to Nature
– 场地与策略 – Site and Strategy –
山城以北,中央公园以南,以“浮游之境”为题,寻觅城市一隅的空灵之境。设计以悬殊的建筑与用地面积比为切入,将建筑整体沿一层铺开,呼应中央公园的大尺度。主入口沿城市界面略向后退,引入大片水景和多层次绿植,形成公共开放的景观广场,共享城市。借城市道路的交角关系确定基本形体,再将基地整体抬高2米,表明建筑的在场,引入景观,对话自然。
▼建筑外观


凝聚|静谧流淌,自如在心
Cohesion – Quiet Flowing, Free in the Mind
– 空间与造型 – Space and Facade –
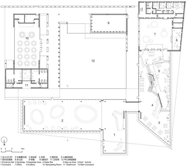
六个功能不一的建筑体量围合内向型的院落空间,环绕式的动线布局,强调内场与访客的互动体验。屋顶加盖一横跨27米,厚仅350mm的极薄金属屋檐,统摄形体要素,强化轻盈的建筑特质。一气呵成的形体关系,舒展有力,简洁明确的叙事动线,在大的场地尺度上切割出多重场景体验,静谧内敛的中庭空间,成为园区视觉和精神的向心所在。
▼入口广场

▼静谧的水面


▼中庭的水景

通透不一的玻璃体块,契合不同功能的场所体验。现代的材料和工艺做法,在光影下显现丰富的场景效果。在这方天地之间,尽享光影间的浮游之境。

丰富|温润有力,画龙点睛
Rich – Gentle and Powerful, Making the Finishing Point
– 室内空间 – Interior Space –
因原有空间较高,所以室内设计希望另空间更贴合人的尺度,所以采用了“在建筑里又做建筑”的方式来处理空间,这种方式又把重庆复杂而有趣的城市天际线和立体的交通状况做了抽象的体现。
▼天花板的设计调和了过大的空间



“山”的意向主要体现在多边形的体块的运用,入口处的实体体块,项目展示区的天花是倒挂的镂空的体块,洽谈区的隔断则是更为轻巧灵动的“虚”的体块,体块的穿插运用贯穿整个销售中心,使得原有大开大合的建筑空间多了很多变化。
▼天花板结合了山的意向

“水”的意向,地面的灰色纹理的石材做不规则的拼贴变化,做出来“水”的感觉,项目展示区的沙盘犹如水中的岛礁,不锈钢材质的装置更像鹅卵石,整个组成一幅静态的流动画面。
▼灰色纹理的石材体现了水的意向


▼大厅一侧的接待处



▼通过接待空间可以到达建筑另一翼的洽谈区

洽谈区在室内做了架空的两层,用实体和木隔断形式把空间做了很多有趣的分隔和变化,同时,组成了“桥”的意向,桥是重庆重要而美丽的城市元素,这样的“桥”,不但分隔了空间,更使得原建筑空间过大的尺度得到了消减,让人在空间中可以更安定。整个空间处理,轻盈、流畅,充满诗意!
▼洽谈区的夹层创造了宜人的尺度



▼从外部空间看到的洽谈区

▼空间中桥的意向


▼夹层上的会谈空间

▼夹层下部多种类型的休息区



▼空间中的装置

▼进入夹层另一侧的休息区

▼舒适的环境

▼空间中的细节

▼洗手间


▼富有童趣的中庭

▼外部庭院

纯粹|空灵之所,无境之境
Pure – Ethereal Existence, Boundless Realm
– 情境之间 – Between Scenarios –
公共开敞,却又内敛聚合,轻盈舒展,却又变换丰富,高冷空灵,却又温润有度。对于这样一个融于山城生活的城市建筑小品,我们希望在时间与空间的变换里,重塑内敛、高冷、丰富的文化空间;在传统与地域的碰撞中,交织出山城生活中的前瞻和想象。
▼夜景




▼富有诗意的环境

▼轴侧

▼平面






