游园学记 - 北京君谊中学国 际部 / 意度建筑
2020-02-06

学校外观 ©金伟琦
感谢 意度建筑 对gooood的分享
每当接手一个设计项目,我们都希望寻找形式和功能以外更深层的空间内容,我称之为空间精神。在我们看来,她是空间的核心,是灵魂,是空间活力与张力的源泉,而她需要被身体和知觉等感知时,就必须转化为“空间原型”,由此融合功能和形式构成实体空间。
▼学校外观夜景,开放通透的北入口,在傍晚可以看到“园”的形态 ©金伟琦

▼老水池与新立面 ©金伟琦

▼外立面夜景,如同一个朦胧的“屏风” ©金伟琦

关于君谊
“段氏后人不从政,皆从事医疗、教育”,这是君谊中学创始人段君宜女士的曾祖父段祺瑞的遗训。怀揣着这样的理想,出身教育世家段君宜女士于1993年再北京成立私立君谊中学,为北京市第 一批民办学校。这所充满着历史传承和文人气息的学校秉持着低密度、讨论式的教学模式,提倡个性化、差异化因材施教。因教学空间不足,学校向教育部门申请,计划将现有篮球馆改造为国 际部。除了普通教室,校方还希望获得足够的多功能活动室及交流空间,作为孩子们自由讨论的空间,年轻的国 际部校长还不断地和我探讨对未来教育模式看法,她希望营造一种开放、平等、充满创造性的学习氛围。
空间原型
“我认为,学校是由适合学习的空间所构成的环境,学校开始于一棵树下,一个不自觉为老师的人与一些不自觉为学生的人讨论着他们对事物的领悟。”——路易斯·康(Louis I. Kahn)。有些时候,只有将实际项目与康的话结合才能理解其含义。我找到两幅具代表意义的中国私塾教学场景:宋画《孔子授学图》和明代林良的《学童闹堂图》。
两幅描绘的古代教育空间的形态有三处共同点:开放和园林化以及融洽的师生关系。联想康所说的“一棵树下”的学习空间,这二幅图近乎可以作为路易斯·康关于学习空间言论的图解。虽然没有树,但宋画的“屏”与明画的“亭”都起着界定空间的作用,与康的那棵“树”是一样,只不过更为具象、更功能化了。这种与自然交融、空间开放通透的园林化空间,氛围是轻松愉悦的,光线、空气是流动的,充盈着自然的气息,这才是学生们能够尽情发挥天性、与严苛的老师融洽共处的原因所在吧。
▼空间原型图,学童闹堂图(明·林良,左),孔子授学图(宋·佚名,右) ©图片均来源于网络

营造“游园”
这种空间原型可以由一个“园”字概括。然而在800平米的君谊篮球馆的有限空间和校方要求获得更多房间的需求矛盾下,将学习空间营造为一个“园”着实困难,并且在当下的教育模式中,教室无法完全对外开敞。因此我们计划营造一种“类园”空间,并赋予空间时间性和流动性,加入“游”字,得“游园”架构,类似古典园林的理景手法,小空间中见大气象,通过折叠空间、障景等手法,令空间变得曲折、丰富、多样,进而获得错落有致、开阖有序、明暗变化、疏密得当的趣味空间,这些空间作为多功能教室和共享空间,颇具园园林化意味,又似游戏空间。普通教室为方正形态,围绕共享空间。
将“园”置于体育馆空间中心,向天空开窗,形成一种室内空间的“园”,东西布置教室,并向外开放,获得自然采光和通风,北侧入口大厅向操场开放,使内部的“园”获得借景,顶部天窗为“园”提供光线和天空,与自然的沟通为空间带来灵动,剖面的错落和平面的转折令空间获得园林式趣味,动线和视线的充分流通,得“游”之动作。“游园”结构将空间与人的身体和知觉连接起来。
▼项目生成过程 ©意度建筑

▼剖透视,原有篮球馆大空间置入教学和共享空间 ©意度建筑

▼剖透视,“园”由南向北逐渐打开,将北侧操场景观收入室内 ©意度建筑

空间形体
围合空间的形体本身被赋予两种性格,一种沉稳厚重,表达君谊中学厚重的历史底蕴;一种轻盈飘逸,表达当下时代新的教学理念和轻松学习氛围。两种性格相互映衬、对撞,又和谐统一。耐候钢板性格刚直,暗喻着西式教育逻辑性和直接,U型玻璃性格柔美,体现着东方文化的诗意和中庸。
▼学校外观 ©金伟琦
▼阳光下轻盈的U玻与厚重的耐候钢板 ©金伟琦

▼shou层改造的玻璃砖与二层U玻的形式变化 ©金伟琦

建筑外围界面均被赋予空间纵深,如竹与耐候钢空洞的刚柔结合,U玻与开敞阳台的虚实结合,作为“园”向外拓展的zui后一层空间,这层界面无论从外看还是从内看都作园林形态,光影在这种纵深界面中移动,记录着时间的流逝,为室内赋予空间拓展和景观,为室外营造通透丰富的形体和光色。
▼从校园中心景观水池看建筑 ©金伟琦

▼外观细节,外“园”与建筑表皮的结合,使表皮成为有厚度的空间 ©金伟琦

入口大厅为原篮球馆zui北跨改造而成,用足原馆空间净高,形成向上延伸的空间,并拆除北墙,将操场景观收入室内。大台阶空间联系着shou层大厅和二层活动平台,以天为盖,以阶为席,类似“树”下空间,为学习、交流提供一处开放、与自然融通之所,其空间界面似露非露,欲遮又藏,其章法源自古典园林的障景,不给人示以全貌,促使人不断探索、不断畅游, 在游的间隙,走廊、大厅、楼梯、天窗等空间将外部景色框入室内。
▼入口大厅 ©金伟琦

▼有大厅看大台阶和三层空中过廊 ©金伟琦

▼“游园”空间 ©金伟琦

▼“园” – 苍穹之下的学习空间,大台阶空间联系着shou层大厅和二层活动平台 ©金伟琦

建筑中心部位不能直接采光的空间,采用贯通二、三层的采光井,将光线直接引入,形成柔和自然的内景效果。游园之间,光影交错,明暗变化,令空间体验更为丰富。
▼建筑中心部位采用贯通二、三层的采光井将光线直接引入 ©金伟琦

▼二层夹层平台,视线可穿过空中过廊眺望远处室外景观 ©金伟琦

▼联系二层夹层、三层走廊和三层夹层的楼梯 ©金伟琦

▼讨论空间 ©金伟琦

▼“水晶宫”会议室内景 ©金伟琦

写在zui后
我认为,建筑的品质可分为几个层次,第 一层是要合理的满足功能,第二层是创造性和艺术性的解决功能,即赋予功能以逻辑和美感,第三层则是在满足前两点的基础上赋予空间以灵魂,即空间的精神。
在设计之初,除了了解基地、功能等之外,我们还希望了解一个业主和使用群体的背景和人格、场所的性格和文化脉络等,由此探索一种与之契合的“空间原型”和普遍真理,寻找到一些深刻的内在逻辑,将这些内在逻辑注入建筑,赋予灵魂,作为设计核心,功能和形式围绕此核心进行构造,待到空间营造完毕,其空间精神性可被感知。我们称之为从无形(感受)到有形(建造)再到无形(感知)的营造过程。
——谌喜民(文)
项目图纸
▼项目区位图 ©意度建筑

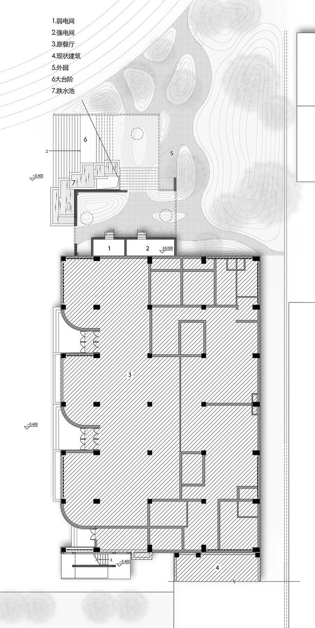
▼shou层平面图 ©意度建筑

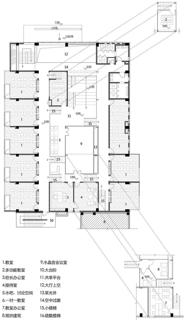
▼二层平面图 ©意度建筑

▼三层及夹层平面图 ©意度建筑

▼北立面图 ©意度建筑

▼西立面图 ©意度建筑

项目名称:北京君谊中学国 际部
设计方:意度建筑
设计周期:2018年4月-2018年9月
施工周期:2018年5月-2019年9月
主持建筑师:谌喜民
设计团队:王宇龙、姜博文
项目地址:北京市大兴区香园路4号
建筑面积:2942
摄影版权:金伟琦
合作方:华诚博远技术工程集团有限公司
客户:北京君谊中学
品牌:耐候钢板、U型玻璃、玻璃砖、铝板





