在静谧诗意的空间,体验归隐的生活艺术—领秀山艺术馆
2019-06-29


▲领秀山艺术馆主入口立面
序言
《乐记》有云:“礼者,天地之序也。”旧时名门望族皆以门庭礼序为立家之本,延伸至当代建筑语言则为场所营造的空间礼序。领秀山艺术馆的设计构思在传承与创新之间,重新解构归家的空间礼序,致礼于这座城的领秀雅士,以静谧诗意的氛围营造“归隐”的生活艺术。

▲领秀山艺术馆主入口夜景
领秀山艺术馆位于中山市五桂山区,紧靠中心城区,连接三乡和城区,通达珠三角各主要城市。依托周边大尖山森林公园,基地拥有开阔的地理视野和得天独厚的自然景观,成为中山市著名的生态宜居片区。

▲领秀山艺术馆鸟瞰
设计团队将岭南文化与场所独有的山石风骨相融合,旨在为城市中的领秀雅士构筑纯然的生活之境,顺应在地的自然环境特质,试图打造充满文化底蕴的建筑居所空间。

▲领秀山艺术馆手稿图

▲领秀山艺术馆西侧高端居住区入口
“草堂无物伴身闲,惟有屏风枕簟间。
本向他山求得石,却于石上看他山。”

▲主立面细部山石小品
建筑空间是生活的容器,也应该以谦卑的姿态将主角让给生活和使用者。自然地,建筑就成为生活艺术的一部分。建筑团队秉承“生活容器”的设计理念,将领秀山艺术馆以时尚兼具古雅的新中式格调,细节之处尽显生活美学与空间艺术的交融并蓄。

▲局部庭院鸟瞰
简约大气的格局,U型的玻璃结构,整个建筑仿佛一个晶莹剔透的玻璃盒子,在光影变换下透着静谧而深远的氛围。

▲艺术馆与不远处的五桂山遥相呼应
庭院深深,虚实相映

▲庭院连廊日常景象
领秀山艺术馆采用直角梯形平面,通过对功能分区和流线的优化,将展示、接待、办公等功能空间进行合理的布局优化,营造出宽敞的格局与丰富的场所体验感,空间使用效率得以提升。

▲功能生成分析

▲艺术馆连廊,提供休憩交流空间
建筑设计采用极简主义手法,以大块面黑白色调,渲染无隔断的流动空间氛围。细节之处运用镜面反射的方式,将镜面与山石、雕塑、树景有机结合。透过光影的力量,呈现材质肌理的变化,波光粼粼的涟漪,让刚柔之美在场地中交织对话。
内外通透,静谧纯粹

▲庭院一隅
首层设计运用大开间的开放式布局,入口处是一汪浅水池以及与庭院结合的灰空间。水景中的假山景观成为设计亮点,与入口景观相呼应的同时有效屏蔽周边环境的不利影响,保证空间的私密性与完整性。


▲艺术馆首层空间格局
在建筑形式及材料方面,设计团队追求简洁精致,勾勒纯粹的公共空间意向,营建禅意化的场所精神。立面选用U型玻璃、铝合金格栅和花岗岩石材等材质创造轻盈通透的氛围,削弱场地入口的长度厚重感。


▲室内空间延续外部建筑特质
室内空间延续外部建筑布局的整体风格,用当代建筑语言重新诠释归隐的居所空间,满足现代社会人们对居住文化和体验的诉求。在这样的空间里,嘈杂被滤净,心绪被抚平,游走的浮云,方正的建筑,都变成了澄明的影子,在这方空间里缓缓流动。

▲领秀山艺术馆日景

▲领秀山艺术馆夜景
设计图纸:

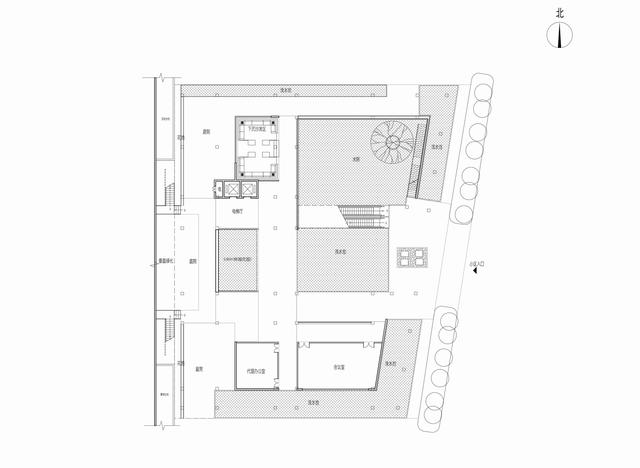
▲一层平面图

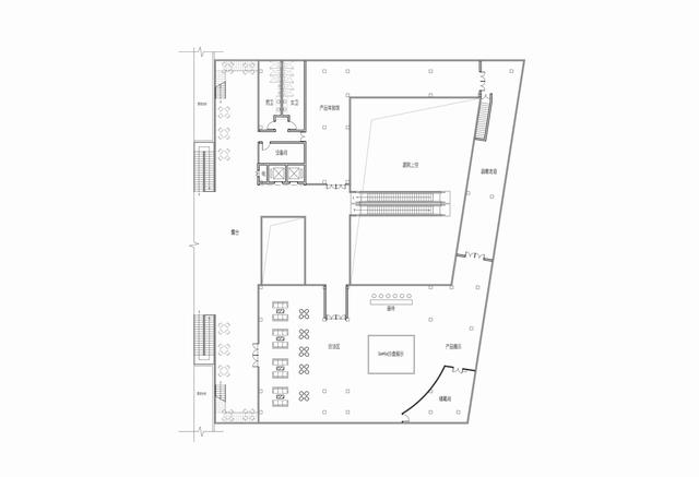
▲二层平面图

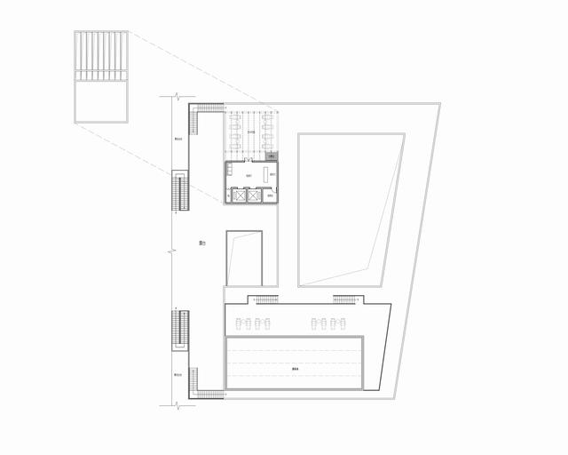
▲三层平面图

▲立面图

▲剖面图

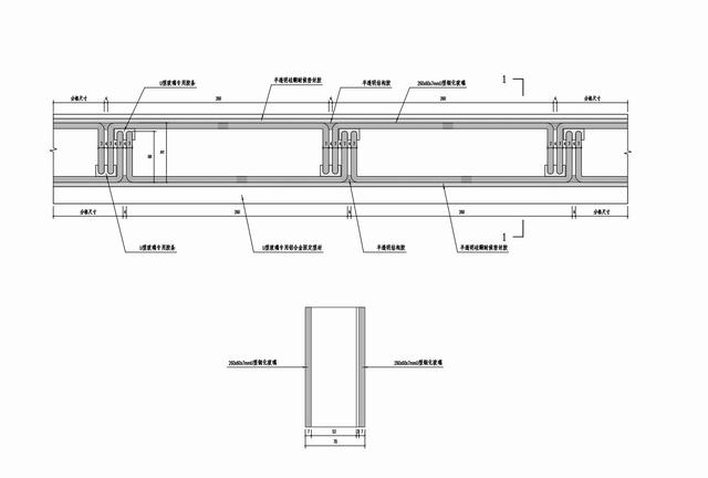
▲U型玻璃构造节点详图





