奥地利Rathausstraße 1办公大楼
2021-10-08

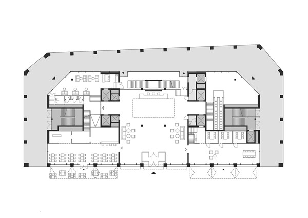
该设计在2013年一次公开建筑竞赛。该概念设想将城市办公楼融入历史环境,同时采用现代的方法。尽管表现为独立的整体建筑,但感官网格与其上下文相互影响。分析参数三重奏的发展:深度,材料和细节在外立面覆层中突出。拱廊,夹层楼,主楼和阁楼楼都可以转换成威廉风格的房屋的层次感-不能在其附近直接使用。高大的楼层,诱人的房间和精致的立面与建造一栋持久的建筑的前提背道而驰,该建筑也可以适应各种变化。在内部,一个宽敞的中央门厅通过玻璃屋顶朝向上方的内部庭院扩展。办公室的机翼由灵活的布局构成,既可以用作开放式计划,也可以用作牢房办公室,并且周围环境良好,而且气候宜人的双层立面通过可打开的窗户改善了个人舒适度。该体积的轮廓是由周围市政厅区域的建筑物对齐方式形成的。经典的“威廉”空间策略也已被整合。在底楼,一条拱廊通向一条狭窄的人行道,同时保持建筑物的对齐,并且将面向大街的建筑物的两个角进行倒角处理。



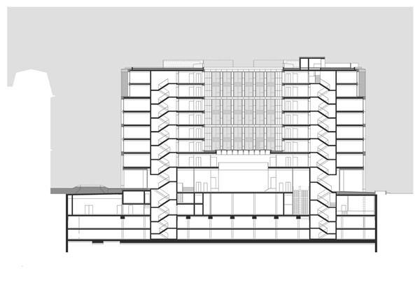
为了支持维也纳城市结构单中心化的体验(被认为是世界遗产“维也纳历史中心”的特征),该建筑的北侧从历史建筑的内部向内转移为了保持在维也纳的象征和视觉中心圣史蒂芬大教堂(St.Stephen's Cathedral)的视线,四米高的直线。 外墙的结构网格在规模和结构上适应了其“威猛的”邻居。水平带,细腻的切口和双层玻璃取代了历史悠久的檐口。另外,将两层楼汇总为一个单元。因此,底层和夹层建立了基础层。上面的地板的基本设计特征是复杂的双层立面系统。它由面向街道的挡板和内部的推拉窗组成。窗格之间的空间通过柱子和横梁中的切口进行通风。这种扩展的双层窗户系统是对历史悠久的古典细节的又一次微妙的当代翻译,它(a)让人联想到典型的维也纳窗户,即“ Kastenfenster”(箱式)窗户。以前的建筑中有90%被作为再利用的原材料保存在循环回路中。




















